RVS-98

RILCO Variable Double Spring Hanger, the RVS-98, has all of the features of the RVS-268 features and is designed to the same exacting specifications.

Each unit consists of two springs arranged in series within a single casing and a centering guide to assure the permanent alignment of the spring assembly.

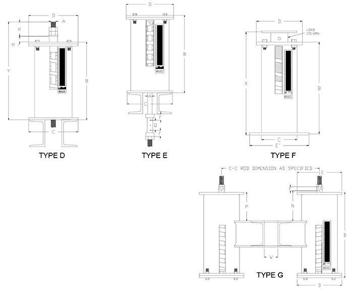
The RVS-98 hanger is offered in seven basic types as shown above in Types A, B, C, D, E, F and G.

Weights (lbs) * Dimensions (inches)

Hanger
Size

Rod
Size
“A”

R.H.
Thread
Length

Casing

Flange
Dia.
“D”

Min
Thread
Engage
“F”

“Z”

Rod Take Out By Type

Type A

Types B, C

Type D

Length
“B”

Dia.
“C”

A

B,C

E

G

Thread
Depth
“G”

Lug
Hole
Size 

Pin
Hgt
“H”

“R”

Clevis
Opening
“S”

Thk.
“T”

Rod
Length
“Y”

Nut
Allow.
“K”

Hgt
Spacer
“M”

“E”

“J”

“Q”

“N”

0

1/2

9

12-5/8

4

5-1/8

15/16

15/16

12-3/16

14-1/8

9

1-1/2

7/16

11/16

1-1/2

1-1/4

7/8

1/4

19-3/8

1-1/4

5-1/2

1

1/2

9

14-3/8

4

5-1/8

15/16

11/16

13-15/16

15-7/8

9

1-1/2

7/16

11/16

1-1/2

1-1/4

7/8

1/4

21-1/8

1-1/4

5-1/2

2

1/2

9

15-7/8

4

5-1/8

15/16

1-1/16

15-3/16

17-1/8

9

1-1/4

7/16

11/16

1-1/2

1-1/4

7/8

1/4

22-1/2

1-1/4

5-1/2

3

1/2

9

14

5-9/16

6-15/16

15/16

9/16

13-7/16

15-3/8

9

1-7/8

7/16

11/16

1-1/2

1-1/4

7/8

1/4

20-3/4

1-1/4

5-1/2

4

1/2

9

15-1/4

5-9/16

6-15/16

15/16

1-3/16

15-3/16

17-1/8

9

2-3/8

7/16

11/16

1-1/2

1-1/4

7/8

1/4

22

1-1/4

5-1/2

5

1/2

9

16-5/8

5-9/16

6-15/16

15/16

1-1/16

15-15/16

17-7/8

9

1-3/4

7/16

11/16

1-1/2

1-1/4

7/8

1/4

22-3/8

1-1/4

5-1/2

6

5/8

9

16-11/16

6-5/8

8-3/8

15/16

13/16

15-15/16

18-1/16

9

1-7/8

5/8

13/16

1-1/2

1-1/4

1-1/16

1/4

23-11/16

1-1/2

5-1/2

7

5/8

9

18-5/8

6-5/8

8-3/8

15/16

1-1/16

18-3/16

20-5/16

9

2-3/16

5/8

13/16

1-1/2

1-1/4

1-1/16

1/4

25-5/8

1-1/2

5-1/2

8

5/8

9

19-9/16

6-5/8

8-3/8

15/16

13/16

18-11/16

20-13/16

9

1-3/4

5/8

13/16

1-1/2

1-1/4

1-1/16

1/4

26-9/16

1-1/2

5-1/2

9

3/4

9

20-3/16

8-5/8

10-3/4

1-1/4

1-1/8

18-7/8

21-3/8

9

2-11/16

1

15/16

1-1/2

1-1/4

1-1/4

3/8

27-7/16

1-3/4

5-1/2

10

3/4

9

22-5/8

8-5/8

10-3/4

1-1/4

1-3/8

21-3/8

23-7/8

9

2-3/4

1

15/16

1-1/2

1-1/4

1-1/4

3/8

29-7/8

1-3/4

5-1/2

11

3/4

10

18-1/4

8-5/8

10-3/4

1-1/4

1-3/16

16-7/8

19-3/8

12

2-5/8

1

15/16

1-1/2

1-1/4

1-1/4

3/8

25-1/2

1-3/4

5-1/2

12

1

10

19-1/2

8-5/8

10-3/4

1-1/4

7/8

17-7/8

20-7/8

12

3-3/8

1

1-1/4

2

1-1/2

1-5/8

1/2

27-1/4

2-1/4

5-1/2

13

1

10

24-3/4

8-5/8

10-3/4

1-1/4

1

23-1/4

26-1/4

12

3-1/2

1

1/14

2

1-1/2

1-5/8

1/2

32-3/8

2-1/4

5-1/2

14

1-1/4

10

24-7/8

8-5/8

10-3/4

1-1/4

3/4

22-1/8

27-1/8

12

3-1/4

1

1-1/2

3

2

2

5/8

33-3/8

3

5-1/2

15

1-1/4

10

24-7/8

8-5/8

10-3/4

1-1/4

3/4

23-1/8

27-1/8

12

3-1/4

1

1-1/2

3

2

2

5/8

33-3/4

3

5-1/2

16

1-1/2

11

29-7/8

8-5/8

11-3/8

1-15/16

2

28-9/16

32-15/16

7

4-1/16

1-3/8

1-3/4

3

2-1/2

2-3/8

3/4

38-7/8

3-1/2

5-1/2

17

1-3/4

12

34

8-5/8

11-3/8

1-15/16

2

32-13/16

37-3/16

7

4-3/16

1-3/8

2

3

2-1/2

2-5/8

3/4

43-1/2

4

5-1/2

18

2

12

33-1/4

12-3/4

15-7/8

2-3/4

2-1/2

31-1/8

37-3/16

7

4-1/8

2-1/4

2-3/8

4

3

2-7/8

3/4

43-3/16

4-9/16

5-1/2

19

2-1/4

13

37-3/4

12-3/4

15-7/8

2-3/4

2-9/16

35-1/2

42-1/8

7

4

2-1/4

2-5/8

4-1/2

3

3-1/8

3/4

48-1/8

5

5-1/2

20

2-1/2

14

44-1/4

12-3/4

15-7/8

2-3/4

2-11/16

42-1/8

48-3/4

7

4-1/8

2-1/4

2-7/8

4-1/2

4

3-3/8

1

55-3/16

5-9/16

5-1/2

21

2-3/4

14

49-7/8

12-3/4

16-7/8

3-5/8

2-3/4

5-7/16

52-11/16

7

3-5/16

2-3/4

3-1/8

4-1/2

4

3-5/8

1

50-5/8

6-1/4

5-1/2

22

3

15

62

12-3/4

16-7/8

3-5/8

2-3/4

58-1/8

66-1/8

7

4-1/8

3

3-3/8

5

4

3-7/8

1

73-1/8

6-5/8

5-1/2

Weights (lbs) * Dimensions (inches)

 

Hanger Size

Type F

Type G

Weight

E’ Bottom Flange

Bottom Flange

Load Col. Dia.

 

Load Flange

 

Length X

 

Channel Size

 

Max C-C

Space Between Channels-W

 

P

 

Type

Size Sq.

Bolt Circle

Min

Max

Bolts

Thick

Dia.

Thick

Min

Max

A,B,C

D,E

F

G

0

7-1/2

7

8-3/4

5/8

1/4

1.90

3-7/8

3/16

14-1/2

16-3/4

C3 x 4.1

24

5/8

1-1/2

12

12

20

37

1

7-1/2

7

8-3/4

5/8

1/4

1.90

3-7/8

3/16

16-1/4

18-1/2

C3 x 4.1

24

5/8

1-1/2

14

14

21

41

2

7-1/2

7

8-3/4

5/8

14

1.90

3-7/8

3/16

17-3/4

20

C3 x 4.1

24

5/8

1-1/2

16

16

23

45

3

7-1/2

7-3/4

8-3/4

3/4

1/4

2.88

5-3/4

3/16

16-5/16

18-11/16

C3 x 4.1

30

3/4

2

22

21

35

55

4

7-1/2

7-3/4

8-3/4

3/4

1/4

2.88

5-3/4

3/16

17-1/16

19-1/4

C3 x 4.1

30

3/4

2

25

24

39

61

5

7-1/2

7-3/4

8-3/4

3/4

1/4

2.88

5-3/4

3/16

18-7/16

20-11/16

C3 x 4.1

30

3/4

 

27

26

41

65

6

9

8

10-7/8

3/4

3/8

3.50

6-3/8

1/4

18-5/8

20-11/16

C3 x 4.1

36

1

2

41

40

62

93

7

9

8

10-7/8

3/4

3/8

3.50

6-3/8

1/4

20-1/2

22-13/16

C3 x 4.1

36

1

2

49

48

72

109

8

9

8

10-7/8

3/4

3/8

3.50

6-3/8

1/4

21-1/8

23-5/16

C3 x 4.1

36

1

 

61

52

75

133

9

13-1/4

10-9/16

16-1/2

3/4

1/2

4.50

8-3/8

1/2

21-1/2

23-11/16

C4 x 5.4

36

1-1/4

3

97

94

136

207

10

13-1/4

10-9/16

16-1/2

3/4

1/2

4.50

8-3/8

1/2

23-7/8

26-9/16

C4 x 5.4

36

1-1/4

3

114

108

150

241

11

13-1/4

10-9/16

16-1/2

3/4

1/2

4.50

8-3/8

1/2

19-1/2

22-11/16

C4 x 5,4

36

1-1/4

3

96

95

134

209

12

13-1/4

10-9/16

16-1/2

3/4

1/2

4.50

8-3/8

1/2

21-1/8

23-1/2

C5 x 6.7

36

1-1/2

4

108

104

144

223

13

13-1/4

10-9/16

16-1/2

3/4

1/2

4.50

8-3/8

1/2

26-1/8

28-11/16

C5 x 6.7

36

1-1/2

4

144

139

181

305

14

13-1/4

10-9/16

16-1/2

3/4

1/2

4.50

8-3/8

1/2

27-1/8

29-3/16

C5 x 6.7

33

1-1/2

4

153

147

188

323

15

13-1/4

10-9/16

16-1/2

3/4

1/2

4.50

8-3/8

1/2

26

28-3/16

C6 x 10.5

36

1-1/2

4

172

163

201

368

16

13-1/4

10-9/16

16-1/2

3/4

1/2

2.00

8-3/8

1/2

31

33-13/16

C8 x 11.5

36

2-1/8

4

218

202

241

462

17

13-1/4

10-9/16

16-1/2

3/4

1/2

2.00

8-3/8

1/2

35

37-3/4

C8 x 11.5

36

2-1/8

4

273

247

287

572

18

17-1/4

15-3/4

22

3/4

5/8

2.50

12-1/2

1/2

34-1/8

36-5/16

C12 x 20.7

42

2-3/8

4

512

477

550

1056

19

17-1/4

15-3/4

22

3/4

5/8

2.50

12-1/2

1/2

38-1/8

40-5/16

C12 x 20.7

42

2-3/8

4

600

548

624

1231

20

17-1/4

15-3/4

22

3/4

5/8

2.50

12-1/2

1/2

45-7/8

47-7/8

C12 x 20.7

40

2-3/8

4

802

723

807

1633

21

17-1/4

15-3/4

22

3/4

5/8

3.00

12-1/2

1/2

50-1/16

54-3/16

C15 x 33.9

48

3-1/8

4

940

845

872

1965

22

17-1/4

15-3/4

22

3/4

5/8

3.00

12-1/2

1/2

62-1/8

66-5/16

C15 x 33.9

48

3-3/8

4

1240

1140

1184

2566